Pangione Developers Inc Logo

Add-A-Level Design & Planning Guide

A step-by-step planning roadmap for Bergen County homeowners considering a second-floor addition — layout strategy, structural planning, permits, finish selections, and build preparation.

Add-A-Level Design & Planning Guide in Bergen County NJ — Pangione Developers Inc
Home Remodeling Contractor Services Add-A-Level Remodeling Hub Design & Planning Guide

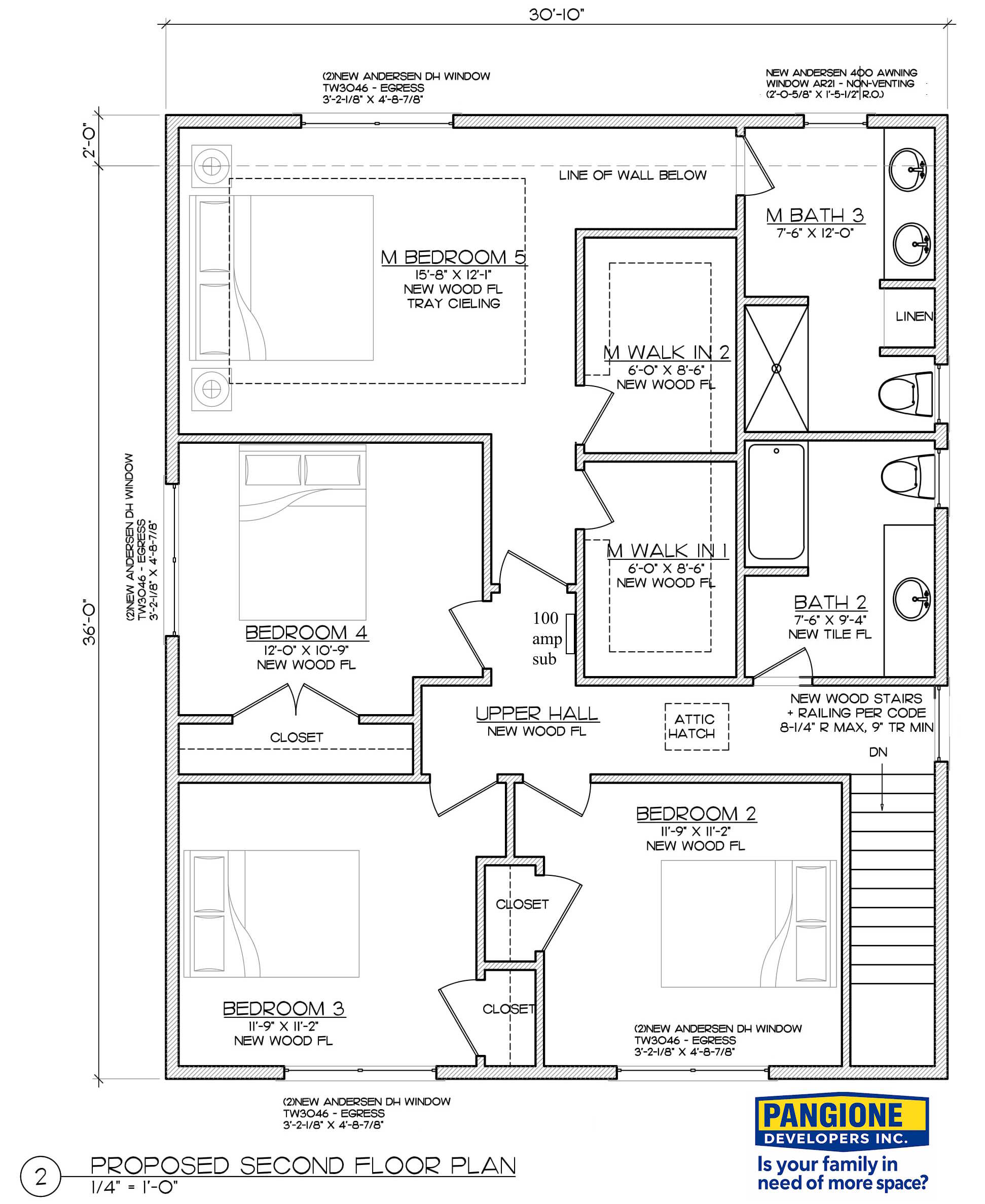
Plan Your Add-A-Level the Right Way

The best Add-A-Level projects begin with clear goals, a smart layout, and a realistic build plan. This guide explains how Bergen County homeowners can prepare for design, engineering, permits, and construction — while avoiding common delays.

1) Define Your Space Goals

  • How many bedrooms and bathrooms are you adding?
  • Do you want a primary suite, office, or playroom?
  • How should the second floor connect to the existing layout?

2) Layout & Stair Planning

Stair placement can make or break the layout. We plan stairs to preserve traffic flow, maximize usable space, and keep the design code-compliant for headroom and landing requirements.

3) Structural & Roof Strategy

Add-A-Level projects may involve roof lift, dormers, new trusses/rafters, and load path upgrades. Engineering plans ensure the new structure integrates safely with your existing foundation and framing.

4) Permits & Zoning Prep

Bergen County towns can vary by zoning limits, setbacks, height requirements, and inspection schedules. Your plan set must align with local building department expectations to prevent approval delays. (See the full Hub for borough-level guidance.)

5) Materials & Finish Selections

Exterior Match
Siding, roof shingles, windows, trim and gutters to blend the addition seamlessly.
Interior Finish Plan
Flooring, tile, fixtures, lighting, doors, and paint schedule — selected before build.

6) Pre-Construction Checklist

  • Confirm scope: rooms, square footage, and key features
  • Finalize plan set: architectural + engineering
  • Permit submission and review timeline
  • Build schedule + inspection milestones
  • Budget alignment (use the Cost Guide page)
Design Concept Spotlight
Visual planning helps finalize layout, roofline, window placement, and exterior match.
Add-A-Level design concept and planning layout — Pangione Developers Inc

Want a Custom Add-A-Level Plan for Your Home?

We’ll review your goals, evaluate structure, and guide you through design, permits, and budgeting.